
46x63 House Plan With Open Tv Lounge In Gujranwala | By Naqsha Wala
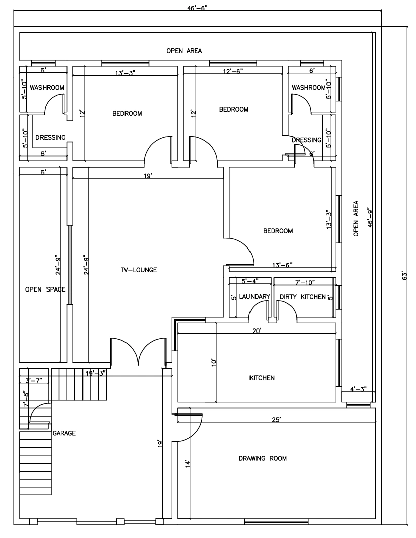
This 46×63 house plan was designed by Naqsha Wala for a modern Pakistani family looking for luxury, openness, and smart space planning. The layout includes three bedrooms, each with its own dressing room and attached washroom, giving full privacy and comfort to every family member. The house features a separate drawing room for guests and a large tv lounge for family living. The most unique part of this design is the tv lounge connected to an open sitting area, where the family can enjoy barbecue, smoking, or evening gatherings. A large window connects the tv lounge with the open space, making the interior feel brighter, more breathable, and visually open. The kitchen is designed as a proper working zone with a clean kitchen, dirty kitchen, and laundry room, ensuring hygiene and smooth workflow. A two-car garage is also provided for secure parking. This plan shows how naksha planning and architectural flow can create a home that is functional, airy, and modern — perfect for urban living in Gujranwala and nearby areas.
Project completed on January 13, 2026