
35×45 House Design in Bismillah Colony, Gujranwala
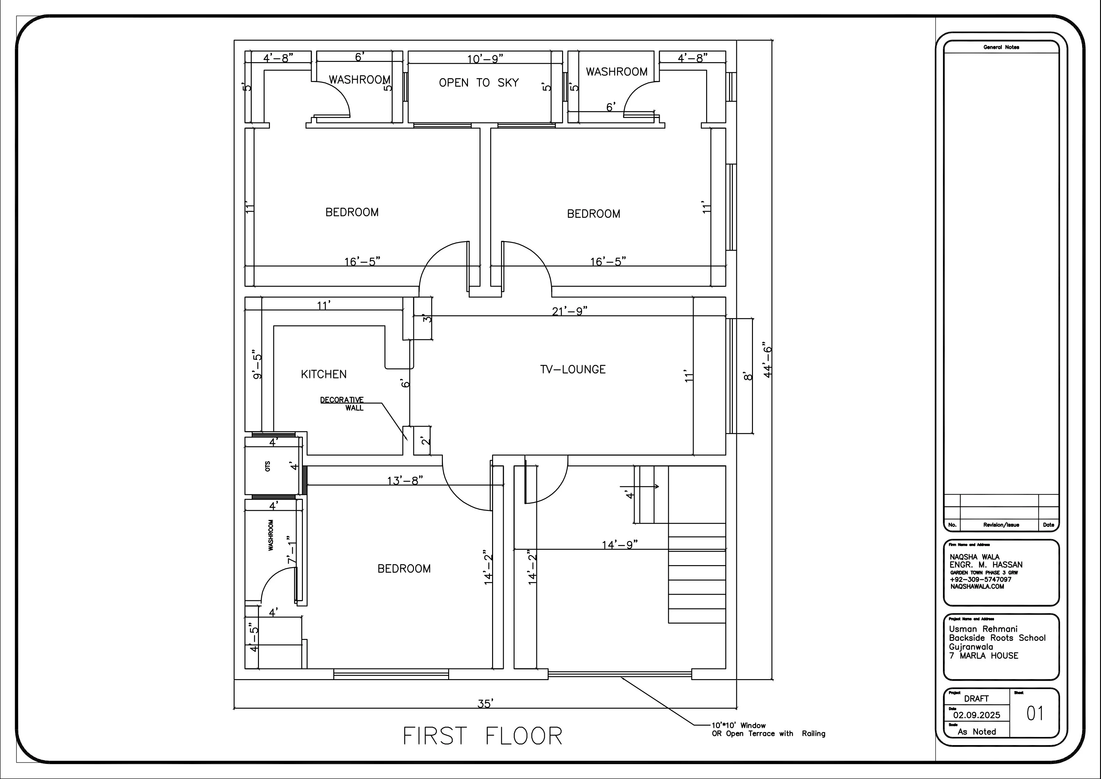
This residential project is a perfect example of how a large plot can be smartly optimized into a compact yet premium home through proper planning and architectural expertise. The project is located in Bismillah Colony, situated at the back side of Road School on Link Road connecting Sialkot Bypass to Pindi Bypass, a rapidly developing residential zone of Gujranwala. Project Background & Client Requirements The client, Usman Rehmani, approached us with a very clear vision. Although the total available land was approximately 12 marla, he specifically wanted to utilize only 35 feet by 45 feet for the house construction, while keeping the remaining area open for future use and ventilation. This type of requirement is quite common in Gujranwala, where families prefer flexibility for expansion, landscaping, or parking in later stages. The client’s main demand was simple yet challenging: Create the best possible house within a customized smaller footprint Proper ground floor and first floor planning Modern layout with comfortable room sizes Maximum functionality without compromising aesthetics Design Strategy & Planning Approach At Naksha / Naqsha / Nakshay Wala, we believe every plot—big or small—deserves a tailor-made solution. For this project, we prepared multiple planning drafts, each focusing on different layout strategies. These drafts explored various room configurations, circulation patterns, and stair placements to ensure efficient use of the 35×45 space. After detailed discussions with the client, one optimized draft was finalized. This selected plan balanced: Smart space utilization Proper light and ventilation Logical connection between living, dining, and private areas Comfortable bedroom sizes despite the compact footprint Ground Floor & First Floor Design The ground floor was designed to accommodate essential daily functions, ensuring convenience and smooth movement. Meanwhile, the first floor was planned with privacy and future family needs in mind. Both floors were carefully aligned structurally and aesthetically, making the house feel spacious despite the limited covered area. Special attention was given to: Staircase positioning Structural grid planning Natural airflow Furniture-friendly room proportions Client Satisfaction & Project Outcome Once the final drawings were delivered, the client was extremely satisfied with the outcome. The ability to convert a portion of a 12 marla plot into a fully functional, modern home exceeded his expectations. The positive feedback and review from Usman Rehmani reflect our commitment to quality planning and personalized architectural solutions. Why This Project Matters This project clearly shows that: Plot size does not limit good design Customized dimensions like 35×45 can still result in an elegant home Professional architectural planning makes a huge difference Every client requirement deserves a unique “naksha” Whether it’s a full 12 marla house, a portion-based construction, or a custom-sized plot, we specialize in creating functional, modern, and approval-friendly house plans across Gujranwala and nearby areas. If you’re looking for a reliable architect in Gujranwala who understands customized plots and modern living needs, Naksha Wala / Naqshawala is always ready to help. Tags custom-house-design-gujranwala 35x45-house-plan-pakistan 12-marla-house-design bismillah-colony-gujranwala house-plan-link-road-gujranwala
Project completed on January 16, 2026