
3 Marla House Design for Imam Masjid – Masjid Ibrahim, Aroop More, Gujranwala
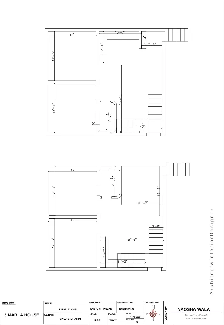
This project is a thoughtfully planned 3 Marla house design for the Imam of Masjid Ibrahim, located at Aroop More, Gujranwala. The primary objective of this residential design was to create a comfortable, practical, and dignified living space that aligns with the lifestyle and responsibilities of a masjid Imam, while efficiently utilizing a limited plot area. Designed by Naqsha Wala, this house plan reflects smart architectural planning, clean circulation, and balanced proportions. In dense urban areas like Gujranwala, especially around Aroop More, compact plots are common. This project demonstrates how professional architectural design can transform a small 3 Marla plot into a fully functional and livable home without compromising comfort or usability. The layout has been carefully organized to provide privacy, ease of movement, and proper zoning between living areas. Each room is proportioned to feel open rather than cramped, which is a common challenge in small house designs. Stair placement has been handled efficiently to minimize wasted space while maintaining smooth vertical circulation between floors. Special consideration was given to ventilation and natural light, ensuring that the house remains airy and comfortable throughout the day. This is especially important for long-term living and energy efficiency. The design also focuses on structural clarity, making it practical not only for construction but also for future maintenance. Since this house is intended for a religious residence, simplicity and functionality were prioritized over unnecessary complexity. The design supports a peaceful living environment, suitable for daily routines, religious responsibilities, and family life. Cost-effectiveness was also a key factor, making this project an ideal solution for masjid-associated housing without exceeding reasonable construction budgets. This 3 Marla house plan is a strong example of how local architectural understanding plays a crucial role in successful residential design. The planning responds to local construction practices, climate conditions, and lifestyle needs specific to Gujranwala and surrounding areas. For anyone looking for a 3 Marla house design in Gujranwala, especially near Aroop More, this project highlights the importance of hiring an experienced architect who understands both space limitations and functional requirements. Whether it is for a masjid Imam, small family, or rental residence, this design offers a reliable blueprint for compact urban living. Naqsha Wala continues to deliver practical, well-structured, and locally relevant architectural solutions across Gujranwala and nearby regions. This project stands as a clear reflection of professional planning, responsible design thinking, and respect for purpose-driven architecture.
Project completed on January 28, 2026