
22′×36′ Modern 3 Marla House Plan – Attock
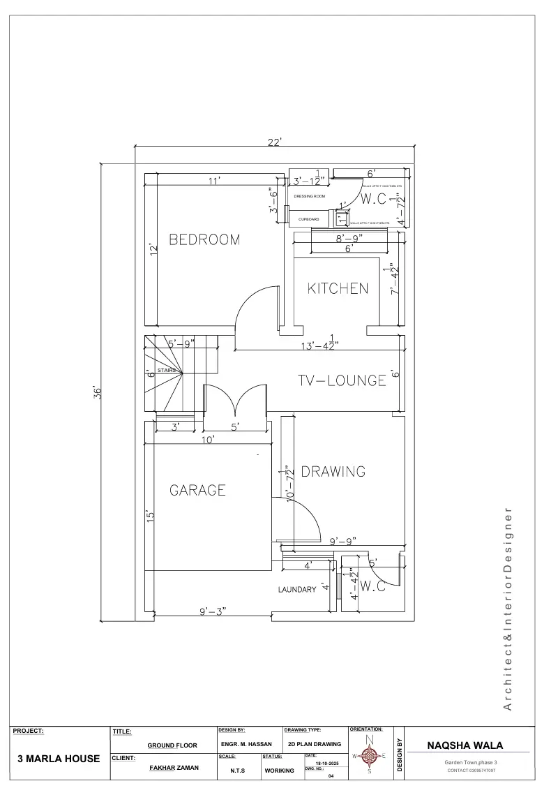
This 22′×36′ (3 Marla) residential house plan in Attock is a carefully crafted project designed and delivered on an emergency timeline by Naksha Wala, a trusted Naksha Designer known for practical, modern, and construction-ready house plans across Pakistan. Although the project location is Attock, the planning standards, detailing, and design approach reflect the same professional quality expected from an architect in Gujranwala and a best architect in Gujranwala. The primary challenge of this project was to achieve maximum space utilization within a compact plot while maintaining comfort, privacy, and smooth circulation. The ground floor layout includes a car garage, formal drawing room, TV lounge, kitchen, bedroom, laundry area, and well-planned washrooms. Each space is positioned strategically to ensure ease of movement and efficient daily use, making the home ideal for modern family living. Special attention was given to ventilation, natural light, and local construction practices, ensuring the plan is practical and cost-effective during execution. The kitchen connects seamlessly with the TV lounge, while the bedroom placement provides privacy from public areas. The garage size and stair positioning were carefully designed to avoid wasted space—something that reflects the experience of a professional Naksha Designer rather than a generic layout. Despite the urgent delivery requirements, the project was completed without compromising on planning accuracy or functionality. All measurements, wall thicknesses, and circulation paths were finalized with construction feasibility in mind. This approach is what differentiates Naksha Wala / Nakshay Wala / Naksha wala from ordinary drafting services and places the brand among the best architect services in Gujranwala and surrounding regions. Clients searching for a reliable architect in Gujranwala, best architect in Gujranwala, or an expert Naksha Designer can expect the same level of professionalism, even for urgent or time-sensitive projects. Whether it is Attock, Gujranwala, Lahore, or nearby cities, Nakshay Wala focuses on creating layouts that are not only visually balanced but also easy to construct on site. This project stands as a strong example of how thoughtful planning can transform a small plot into a comfortable and efficient home. Delivered with precision, speed, and client satisfaction, this 3 Marla house plan reflects the commitment, experience, and design clarity that define Naksha Wala.
Project completed on January 28, 2026