
10 Marla House Plan Design in Attock with Double Height Lobby & Grand Staircase
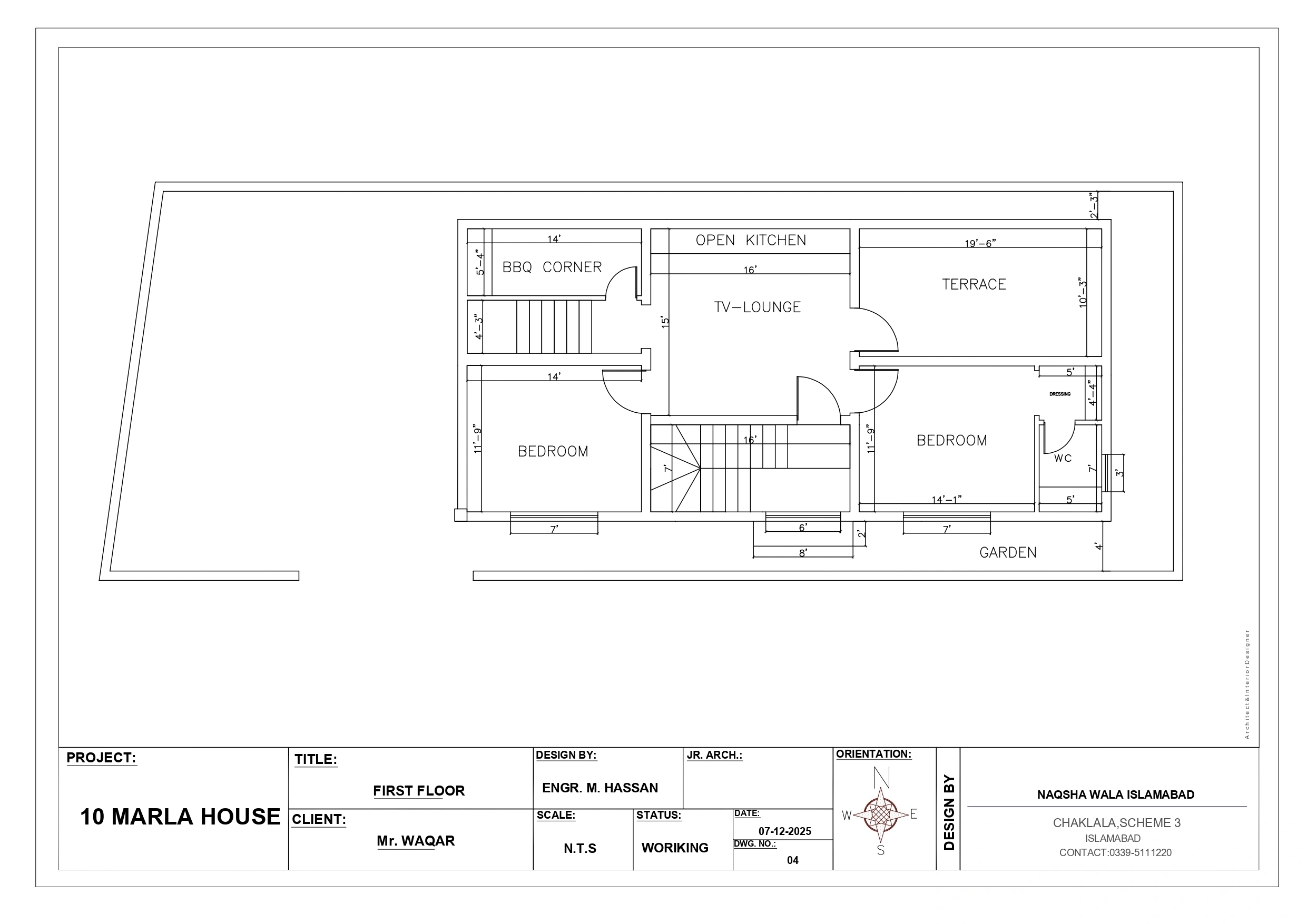
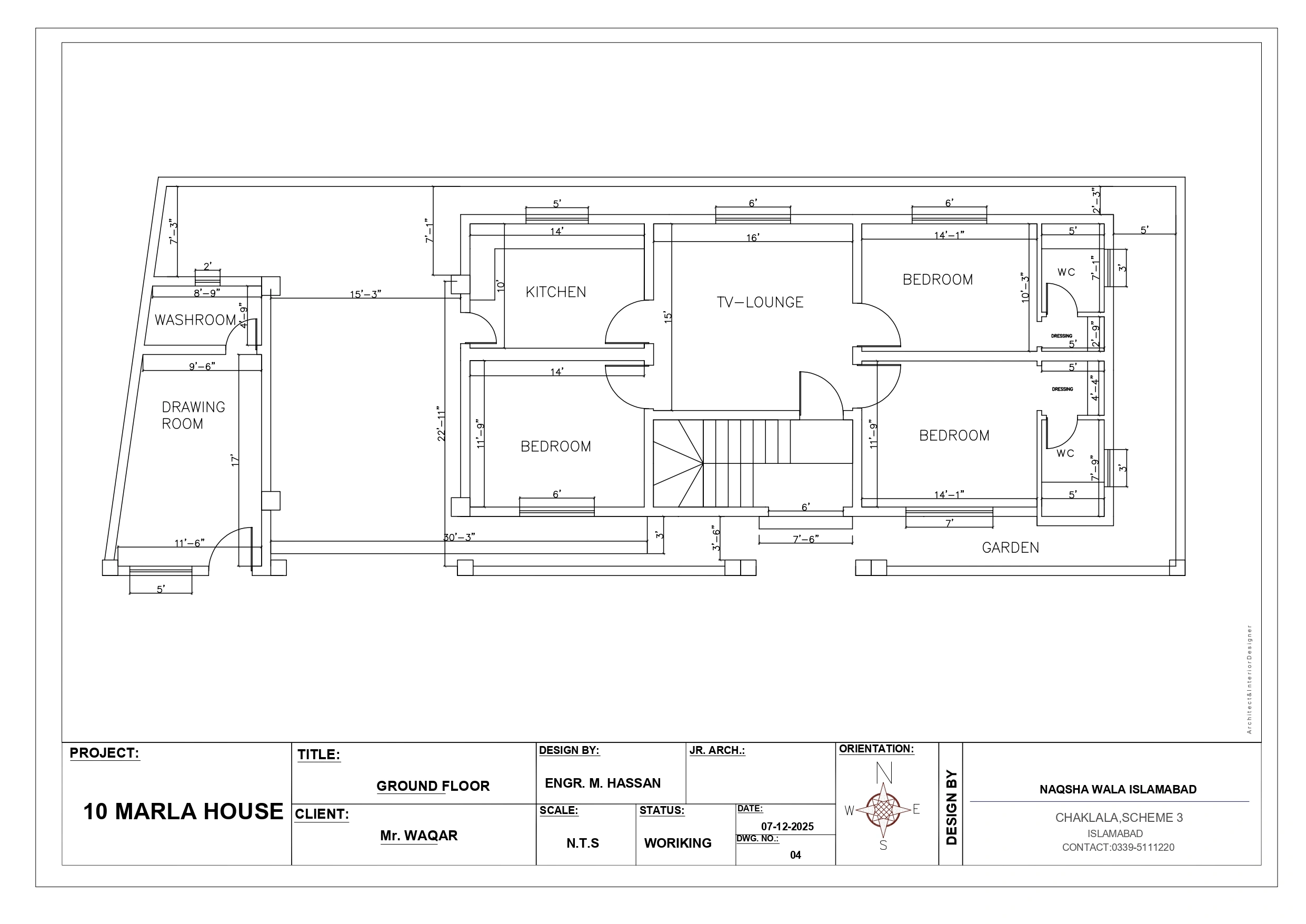
Alongside the elevation, we also developed a highly customized 10 marla house plan tailored specifically for the unusual plot dimensions. Despite the shallow depth, the planning was executed with precision to ensure luxury, openness, and smooth circulation throughout the house. The centerpiece of the layout is a double-height lobby with a grand staircase, designed to accommodate chandeliers and natural light, instantly creating a sense of scale and elegance upon entry. This feature alone elevates the entire experience of the house and complements the Roman–Spanish elevation concept perfectly. The plan includes a separate formal drawing room with an attached washroom, ensuring privacy for guests. The living spaces are well-connected, yet clearly zoned for family and guests. Both front yard and backyard were intelligently incorporated to maintain ventilation and openness—something rarely achieved in such shallow plots. A spacious garage, well-planned circulation paths, landscape pockets, and thoughtful stair placement made this plan both functional and visually impressive. Every square foot was utilized strategically, proving that even the most difficult plots can result in exceptional homes when designed correctly. This project in Attock is a perfect example of how innovative planning and strong elevation design can overcome extreme site constraints. Project Details Client Name: Waqar Plot Size: 10 Marla Front Width: 65 Feet Location: Attock Designed By: Naqshawala, Islamabad If you want a luxury house plan or elevation design for a challenging plot in Attock or nearby cities, Nakshawala specializes in turning limitations into landmark designs. 0-marla-house-design-attock 10-marla-house-plan-attock 10-marla-house-elevation-attock luxury-house-design-attock roman-style-house-elevation spanish-style-house-design double-height-entrance-design double-height-lobby-house modern-house-elevation-pakistan 65-feet-front-house-design shallow-plot-house-plan luxury-house-plan-pakistan separate-drawing-room-design drawing-room-with-attached-washroom front-and-back-yard-house modern-boundary-wall-design luxury-garage-house-design
Project completed on January 16, 2026